枠組関連・共通機材
1219枠・914枠・610枠(調整枠)など、各種取り揃えております。

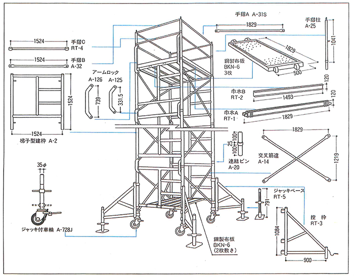
ローリング
組立図

先行手すり
セフトパラペッター
- セフトパラペッターは、アルミ製の幅木固定タイプをご用意しております。
- 幅木には作業床との隙間をなくすための隙間ふさぎ板が組み込まれており、作業床上での安全作業が確保できます。(作業床からの落下防止)

スカイジャック(建枠用持ち送り式先行手すり)
優れた機能性により、安全と経済性が向上

安全性

落下防止を防ぎきる耐荷重設計
- 手摺に命綱をかけても万一の落下事故から、尊い命を守ります(110kgの落下試験に合格)
- 常に片側の支柱が建枠に固定されているので移動中の落下の心配がありません。
機能性

あらゆる建枠に対応可能となり作業も簡単に
- インチメーター兼用でブレスピンには干渉しないため、あらゆる建枠に対応できます。
- 軽量のため持ち送り作業が簡単で、また支柱への固定がロックピンを回転させるだけで行えます。
経済性

限界までの軽量化&コンパクト化で経済性も向上
- 持ち送り式のため、建枠一段分の数量で済み、最上段では手摺として使用できます。
- 部材自体が軽量でコンパクトに折りたためるため、搬入・搬出時のコストが削減されます。
ストレッチポール
枠組足場の組立及び解体作業時に使用される、水平親 網支柱システムです。

- アルミ製で親綱支柱の盛り替え作業が簡易に行えます。
